免費咨詢熱線
13262213023鍋爐類型 煤粉鍋爐
蒸發量 240t/h
鍋爐數量 2臺
配置方式 一爐一機
煙氣流量 50x104m3/h,最大不超過55x104m3/h
入口煙氣溫度 135℃
入口煙塵質量濃度 32g/m3
出口煙塵質量濃度: C2=100mg/m3
要求除塵效率 : 
電場形式: 臥式3電場
供電機組、工控機、料位儀、輸灰設施按要求配套。

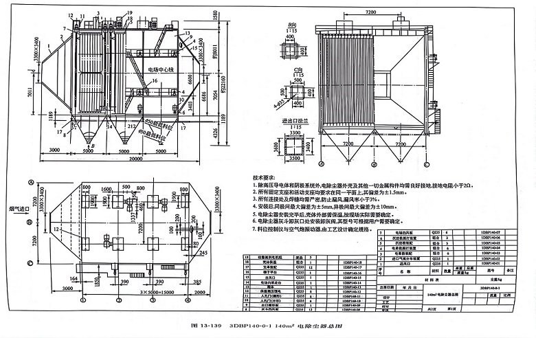
《通風與空調工程施工質量驗收規范》(GB 50243);《鋼結構工程施工質量驗收規范》(GB 50205);《機械設備安裝工程施工及驗收通用規范》(GB 50231);《電氣裝置安裝工程施工質量驗收規范》(GB52054);《火電廠大氣污染物排放標準》(GB 13223);《臥式電除塵器》(HCRJ 002);《高壓靜電除塵用整流設備》(HCRJ 011);《電除塵器低壓控制電源》(HBC 35)。
①電場數量:單室3電場。
②沉淀極:C480。
③電暈極:1、2電場,芒刺線;3電場,星形線。
④同極間距:300mm、400mm、400mm。
⑤進出口設置氣流分布板。
⑥灰斗內設置阻流板。
⑦灰斗內設置高、低位料位儀監控。
⑧除塵系統設置PLC監控運行。
⑨輸灰系統按要求配套。
⑩硅整流機組分電場供電,自動跟蹤、調節。




沉淀極振打裝置 雙側搖臂振打,XWED 1.1-63-1/1505,3臺
電暈極振打裝置 單側雙層搖臂振打,XWED 0.75-63-1/1225,6臺
防爆要求 防爆
保溫箱加熱器 JGQ2-220/2.0,8組
供電機組形式 GGAJO2型,80kV/1.0A,3臺
設備外形尺寸 20.0mx14.4mx22.16m
分部工程量明細表見表13-35。
表13-35 分部工程量明細表
| 項目 | 型號 | 質量/t | 數量 |
| 1、靜電除塵器 | TAWC140-1/3 | 588.32 | 1臺 |
| (1)進風口 | 16.98 | 1組 | |
| (2)進口氣流分布裝置 | 11.97 | 1組 | |
| (3)電暈極裝置 | 芒刺+星形 | 100.98 | 3組 |
| (4)電暈極振打裝置 | 8.00 | 6組 | |
| (5)沉淀極裝配 | C480 | 142.82 | 3組 |
| (6)沉淀極振打裝置 | 10.72 | 6組 | |
| (7)電場擋風板 | 1.60 | 6組 | |
| (8)灰斗擋風板 | 6.00 | 12組 | |
| (9)出口槽形板 | 6.25 | 1組 | |
| (10)入孔門(方形) | 0.32 | 3組 | |
| (11)入孔門(圓形) | 0.20 | 8組 | |
| (12)保溫箱及饋電 | 6.00 | 8組 | |
| (13)殼體 | 180.02 | 1組 | |
| (14)電場內部走臺 | 2.50 | 1組 | |
| (15)出風口 | 15.78 | 1組 | |
| (16)梯子平臺 | 11.20 | 1組 | |
| (17)支座裝配 | 18.50 | 12組 | |
| (18)保溫 | 48.48 | 1臺 | |
| 2.供電裝置 | |||
| (1)硅整流機組 | GGA02-1.0/80 | 3臺 | |
| (2)高壓隔離開頭柜 | GK | 3臺 | |
| (3)低壓程控控制柜 | DDPLC-2 | 1臺 | |
| (4)安全連鎖箱 | XLS | 1臺 | |
| (5)操作端子箱 | XD | 2臺 | |
| (6)檢修箱 | XJ | 1臺 | |
| (7)其他 | 1臺 | ||
| 3.其他 | 49.00 | 1臺 | |
| (1)輸灰系統 | 18t/h | 16.00 | 1組 |
| (2)料位控制儀 | 1.00 | 6組 | |
| (3)PLC控制系統 | 4.00 | 1套 | |
| (4)除塵管道 | 28.00 | 1套 |

關鍵詞:上海噪聲治理 噪音治理公司 冷卻塔降噪公司 隔音降噪公司 ICP備案號:滬ICP備2024047205號-1
滬公網安備31011402006460號